Haus auf Brüsch
Männedorf, 2026 (in Bau)
{"825":"https:\/\/baukombinat.ch\/wp-content\/uploads\/2026\/03\/Breitenloostr-Baustelle_3-1027x635.jpg","824":"https:\/\/baukombinat.ch\/wp-content\/uploads\/2026\/03\/Breitenloostr-Baustelle_2-1027x635.jpg","823":"https:\/\/baukombinat.ch\/wp-content\/uploads\/2026\/03\/Breitenloostr-Baustelle_TITEL-1027x635.jpg"}Das Haus für eine junge Familie in einem lebendigen Gartenquartier erfordert eine sorgfältige Erarbeitung von Raumprogramm und Konstruktion.
Am Rande der Bebauung Männedorfs, am Allenberg, liegt ein über verschiedene Jahrzehnte gewachsenes Wohnquartier. Hier galt es, für eine junge Familie ein Gebäude zu entwerfen, das den Erfordernissen, die ihr Wachstum mit sich bringt, adäquaten Raum bieten kann.
Das einfache, die Körnung der Nachbarschaft aufnehmende Volumen sitzt ruhig am Hang und zeigt zur Strasse, nach Süden, eine Hauptfassade als Gesicht. Es wendet sich gleichzeitig aber auch den umgebenden Nachbarn sorgfältig zu.
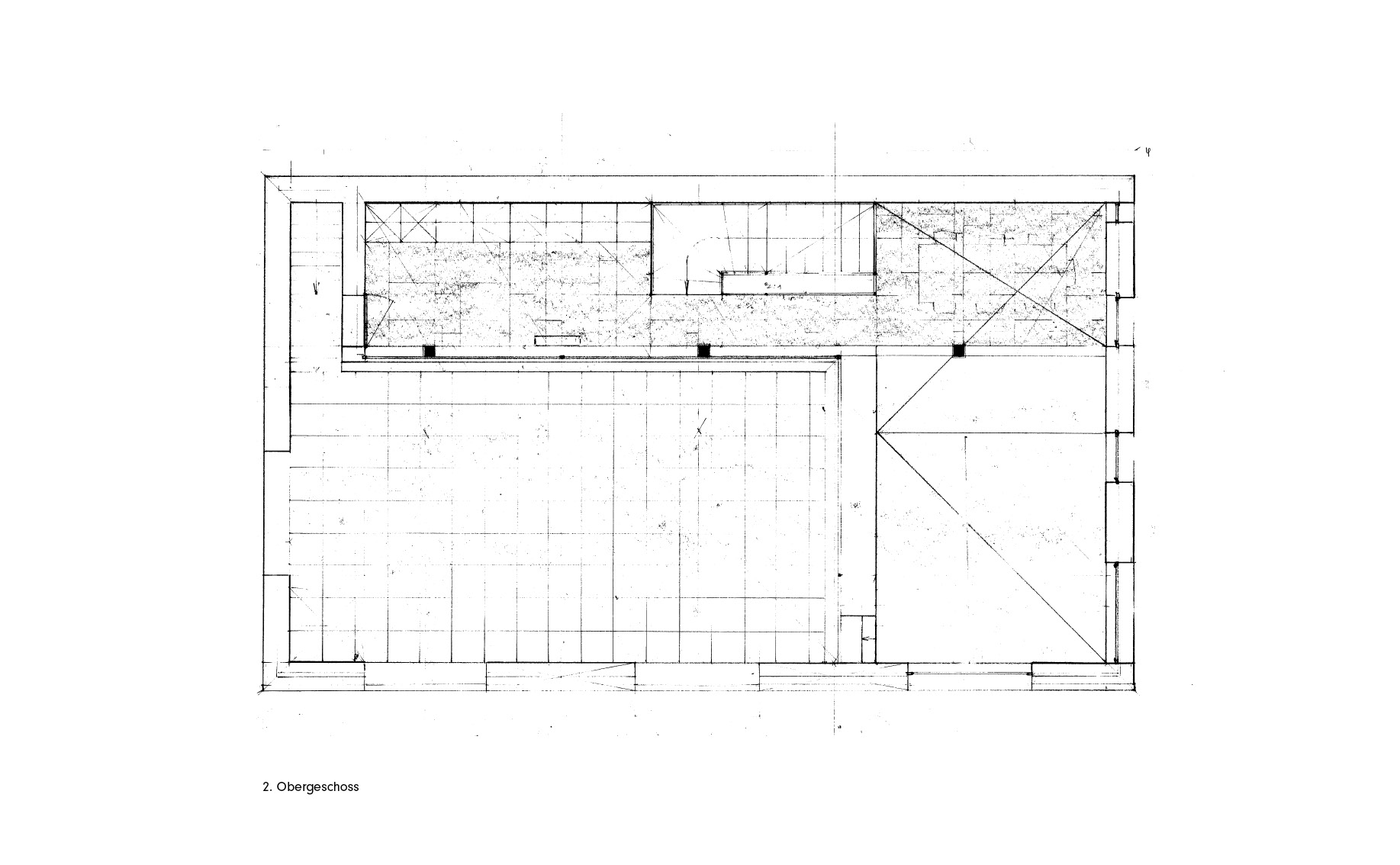
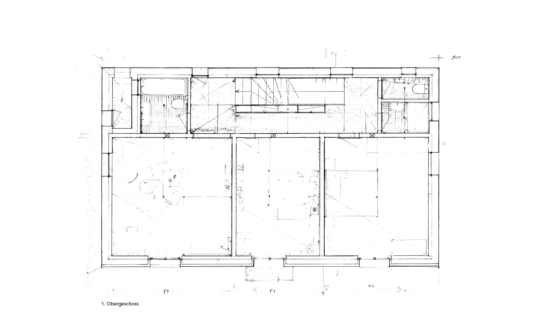
Es wurde nach einfachen Lösungen gesucht, die in einem klaren Gesamtzusammenhang mit verschiedenen räumlichen Bedürfnissen umgehen können: Über dem eingegrabenen Eingangsgeschoss schliesst sich das 1. OG mit drei frei bespielbaren Zimmern an. Den Abschluss der Folge bildet das Wohngeschoss (2. OG) mit Küche, Essbereich und Wohnraum, die sich um einen eingefassten Aussenraum gliedern, der über eine versteckte Treppe wiederum mit dem Garten verbunden ist.
Das Bauwerk wird mit einfachen Baumaterialien in homogenen Bauweisen monolithisch gebaut. Die Mittel stecken im Raum, nicht in dessen Oberflächen; es geht um Substanz.







